- マンション
本八幡キャピタルタワー[最上階]
| 価格 | 10,998万円 |
|---|---|
| 管理費 | 32,211円 |
| 修繕積立金 | 32,265円 |
| 交通 | 都営新宿線「本八幡」駅 徒歩1分 |
|---|---|
| その他交通 |
JR総武線「本八幡」駅 徒歩3分 京成本線「京成八幡」駅 徒歩4分 |
| 所在地 | 千葉県市川市八幡3丁目5-1 |
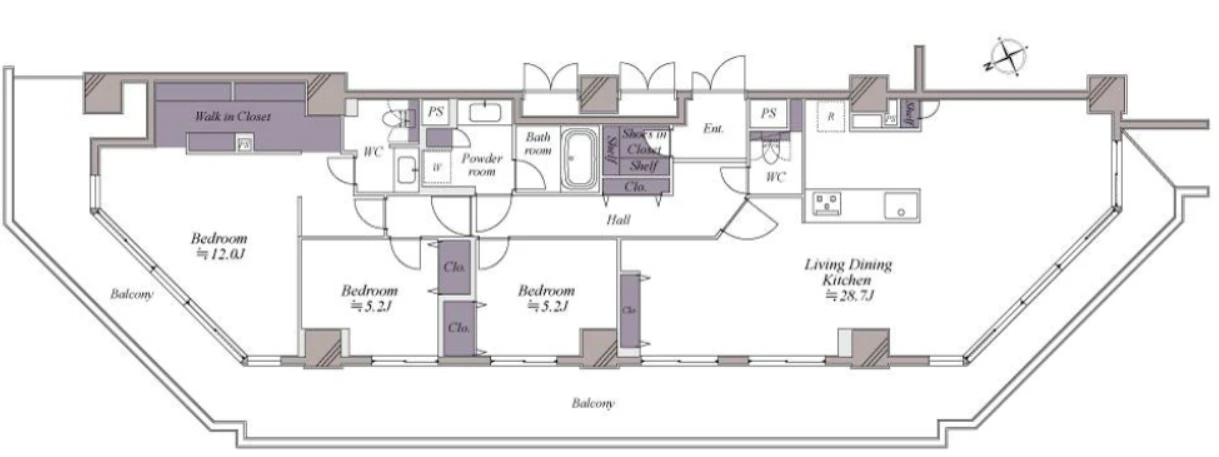
| 間取り(内訳) | 3LDK |
|---|---|
| 専有面積 | 壁芯 124.09m² |
| 階建/階 | 地下2階付 地上24階建/24階 |
| 建物構造 | 鉄筋コンクリート・鉄骨造 |
| 築年月 | 1999年11月 |
| 総戸数 | 113戸 |
| 物件種目 | 中古マンション |
バス・トイレ別2階以上10階建て以上20階建て以上最上階角部屋ペット相談駐車場(近隣含む)南向きオートロックエレベーター追焚き機能
| point |
全内装・設備一新のフルリフォーム! (2026年2月中旬工事完了予定) |
|---|---|
| 物件情報 |
◎玄関を開けると贅沢な空間、124㎡の最上階レジデンス ◎東京都心を一望する、視界を遮るものが無い美しい夜景 ◎まるでホテルのような上質感を纏う、洗練のシンプルモダンリノベーション ◎JR総武線/都営新宿線/京成本線の3路線利用できる駅近タワーマンション |
| リフォーム履歴 |
システムキッチン/ユニットバス/トイレ×2/洗面化粧台/フローリング/フロアタイル/クロス/建具/ etc. |
| 設備 | - |
| 現況 | 空室 |
|---|---|
| 敷地面積 | 2357.90m² |
| 主要採光面 | 南・西・北 |
| バルコニー | 34.07m² |
| ペット | 飼育不可 |
| 駐車場 | 無 |
|---|---|
| バイク置き場 | 無 |
| 駐輪場 | 有 |
| 維持費等 | - |
| その他一時金 | - |
| 土地権利 | 所有権 |
|---|---|
| 引渡可能時期 | 2026年2月以降(相談) |
| 管理形態/管理員の勤務形態 | 全部委託/日勤(株式会社合人社計画研究所) |
|---|









